mas maristany
Menu
Inici
Projectes
Equip
Contacte
ESP
ENG
CAT
Menu
Inici
Projectes
Equip
Contacte
ESP
ENG
CAT
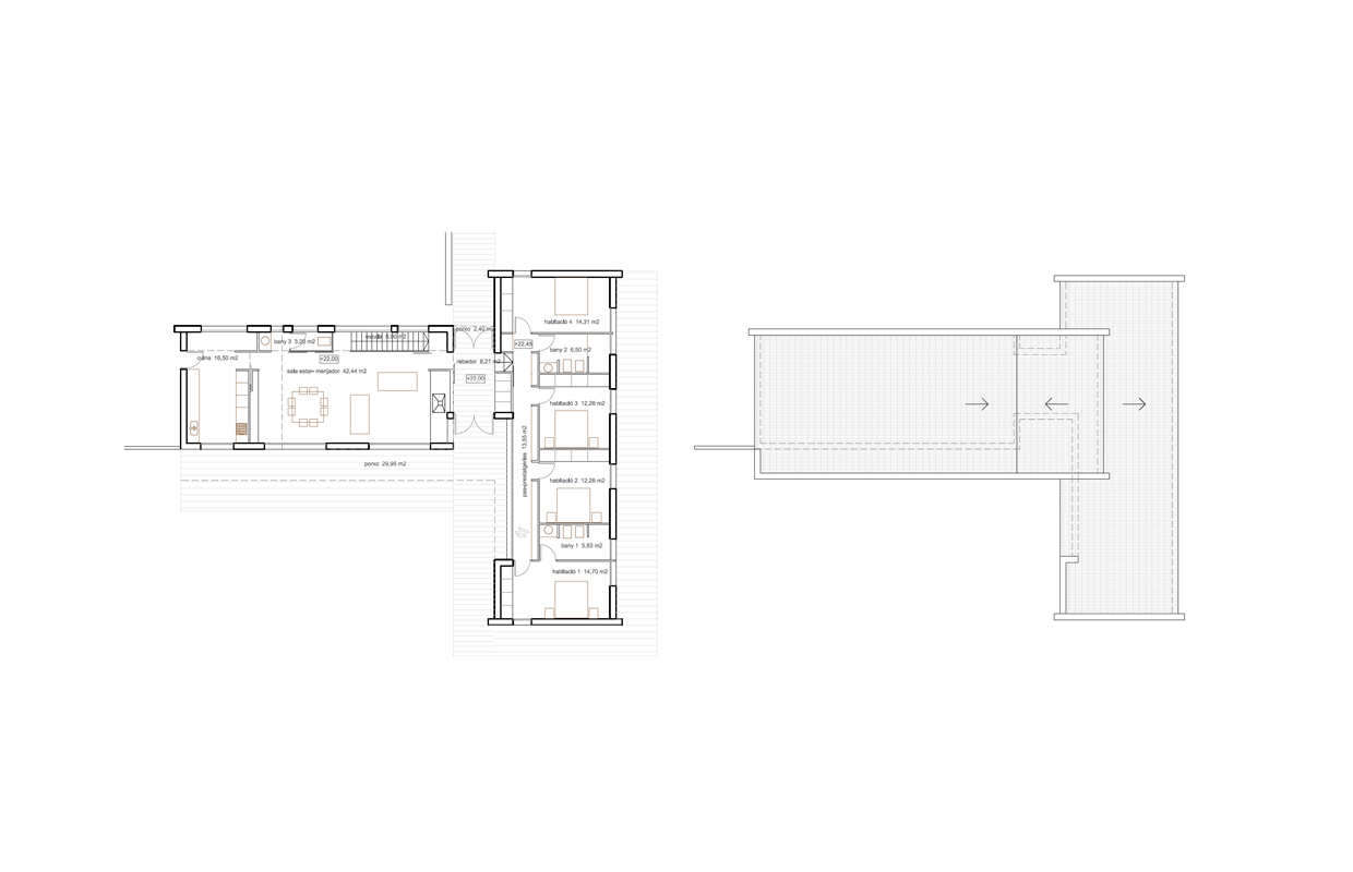
HABITATGES A CAMALLERA
Projecte de 2 habitatges a Camallera
Data
: 2004
Promotor
: privat.
Autores
: Lorena Maristany, Sílvia Mas e Inés Jackson.